2023-12-17, 07:42
Kubiczny D30 - zdjęcia z realizacji
Zobaczcie jakiej pięknej realizacji, wykonanej przez firmę WOLF HOUSE, doczekał się nasz projekt KUBICZNY D30! Dziękujemy https://wolfhaus.pl za udostępnienie zdjęć.
2023-12-17, 07:42
Zobaczcie jakiej pięknej realizacji, wykonanej przez firmę WOLF HOUSE, doczekał się nasz projekt KUBICZNY D30! Dziękujemy https://wolfhaus.pl za udostępnienie zdjęć.
2023-12-15, 10:41
2023-11-17, 07:33
Projekt domu „PRZYTULNY D25 WARIANT I” to propozycja niewielkiego, lecz nowoczesnego domu o modnej i kompaktowej bryle oraz pierwszorzędnym układzie funkcjonalnym wnętrz.
https://www.pracowniaprojektowa.info/Porjekt_domu_Przytulny_25_Wariant_I
2023-05-25, 05:58
Dzięki uprzejmości Inwestora prezentujemy kilka zdjęć z realizacji domu wg. projektu KUBICZNY D30 w lustrzanym odbiciu.
2023-05-15, 08:44
Naszą ofertę poszerzył projekt wiaty garażowej z płaskim dachem, nawiązujący swoim stylem do oferowanych przez nas projektów domów.
https://www.pracowniaprojektowa.info/projekt_wiaty_garazowej_bk-9
W niniejszym artykule chcielibyśmy pokazać Wam wizualizację oraz koncepcję domu, który w ostatnim czasie zaprojektowaliśmy na indywidualne zlecenie dla rodziny spod Warszawy.
Projekt przedstawia dom jednorodzinny, dwu-kondygnacyjny, z płaskim dachem i garażem. Klientom, w największym stopniu, zależało na jak największym otwarciu się oknami na południe i zachód działki tak, aby wpuścić do domu jak najwięcej światła.
Dzięki olbrzymim przeszkleniom w salonie, jadalni i kuchni dom z pewnością taki będzie - jasny, pełen naturalnego światła. Zadbaliśmy o to, aby również i pomieszczenia na piętrze były bardzo dobrze doświetlone.
Bryła budynku to ciekawe połączenie kubików, liczne podcienie i wysunięcia gzymsu, do tego pergola i tarasy okalające dom. A wszystko utrzymane w eleganckich kolorach bieli, czerni i naturalnego drewna (zdjęcia wizualizacji poniżej).
A jak dom wygląda od wewnątrz?
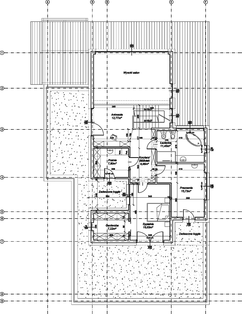
Parter
Oprócz garażu znajduje się tu wysoki salon z miejscem na "kozę" i ażurowymi schodami prowadzącymi na piętro. Tuż obok jadalnia oraz duża kuchnia ze spiżarnią i bardzo praktycznym wyjściem na korytarz. Ponadto, obok łazienki zaprojektowaliśmy dodatkowy pokój. W małym przedsionku prowadzącym na korytarz znajduje się schowek z przestronnymi szafami wnękowymi. Obok garażu znajduje się wiata, która prowadzi do dużego pomieszczenia technicznego.
Piętro
Tuż przy schodach umieściliśmy efektowną antresolę z widokiem na salon i wyjściem na górny taras. Jej powierzchnię można zagospodarować na wiele ciekawych pomysłów. Z korytarza (który stanowi jednocześnie rodzinną bibliotekę) można przejść do łazienki, pralni, pracowni i sypialni z oddzielną garderobą. Z pracowni oraz z pralni można wyjść na zadaszone loggie, które idealnie sprawdzą się jako suszarnia na świeżym powietrzu lub kącik do odpoczynku w trakcie pracy w pracowni. Z sypialni i antresoli również można wyjść na przestronny taras.
Klient zaakceptował koncepcję a więc teraz przechodzimy do etapu opracowywania projektu architektoniczno-budowlanego, a Was zapraszamy do obejrzenia poniższej wizualizacji.